Price On Application
Restored
Victorian Wagonmaker’s Cottage
near Darlington, between Weardale/Lower Teesdale.
National Railway Museum, Shildon 100 metres.

2

2

Freehold




Between Weardale and lower Teesdale among the amazing, rich treasures of Northeast England. This is an impressive, brick period house of the 1890’s, in a short stone terrace. Just 100 metres from lovely Georgian parkland, with listed Regency houses, gardens and the world’s oldest engine sheds on the open-air site of the National Railway Museum, Shildon. The equally-beautiful and safe Hackworth Park is only 200 metres in the other direction. The property is tucked away in a small town’s oasis of green space near good facilities.
With high ceilings, a nice period restoration in 2017 had a complete rewire, heritage oak and brass dome light switches, period-style lighting, trip switches, complete replastering, new floors, new gas CH eco-boiler, new bathroom with slipper bath, nine top quality 6-panel Victorian-style solid pitch-pine doors. Immaculate carpets and neutral décor. High quality heritage-pattern uPVC double-glazing and front & back doors.
Fibre optic high speed broadband connection point.
Mature outdoor courtyard garden with dining area, power, water, new bespoke solid hardwood garden gate and Teesdale stone wall capping; honeysuckle, roses, clematis, fruiting damsons; small, beautiful, quiet, very easy maintenance.
Ample free parking to the front, the owners currently parking on-street 3 cars for the property with no difficulty.
Click on images to enlarge :

























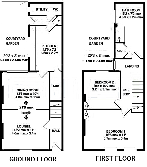
Ground floor:
Entrance passage with coat hooks. Recreating a Victorian salon, the dignified and spacious dining room and through sitting room have fitted book and glass display shelves under domed alcove lights, mahogany fire surround, two new five-light champagne chandeliers. Chimney breast suitable for a log burner according to taste.
Pleasant kitchen with chamfered cream tiles, steel edges and vinyl surface units, Stoves hob, double oven, plumbed for dish washer, WC and utility area housing plumbed washing machine and tumble drier. Second sink. Large walk-in pantry store cupboard, shelved with hanging rail, utility cupboard.
First floor:
Two good double bedrooms each with shelved cupboards. The larger front bedroom is currently used as a third reception lounge/guest room with large radiator, alcove, cupboard and attractive paired windows to the front.
Landing with pleasant window alcove suitable for a desk, gallery off. Attic hatch.
Bathroom in period Wedgwood dark blue with handsome, new oak parquet vinyl flooring, new white slipper bath, new walk-in shower, white pedestal sink, second WC, large double door store cupboard housing boiler.
Attic storage and roof:
Hatch access from gallery to attic: boarded, plastered, with Velux window, insulated in floor, walls and under roof, separately-walled storage area, power, lighting.
Roof: Tiled, new ventilated ridge, newly capped & ventilated chimney stack, new pointing. Rear extension done with fully documented planning and building regs, full length to rear alley, with recently inspected asphalt roof in good condition.
Summary
A reluctant sale of a house lovingly-developed as a long-term main residence with the owners moving abroad to work. No chain, vacant possession on completion around one month after exchanging contracts to allow the owners’ shipping container booking. A beautiful, spacious and comfortable property in easy reach of many attractions. If you don’t know the area, boy are you in for a treat. Please read the travel times to attractions below and prepare to fall off your seat in disbelief if you live in London!
The guide price reflects the affordability of the area and rapidly-escalating sold prices within 300 metres, post-lockdown, in 2021. All of the new 2-bed houses around here, priced at £130,000, have half the floor space, no attic potential, low ceilings, paltry storage, a lot less character and limited parking. Why buy a shoe-box when you can have ample space and a classy period interior.
This is an unbeatable opportunity to obtain an ultra-low cost, fine period home, perfect to improve lifestyle away from city restrictions, with lots of potential for a new life with working from home. Ample space for single occupancy, a couple or young family. A promising investment, too, with HM Treasury moving to Darlington next year.
On the 200th anniversary of the Stockton to Darlington railway in 2025, Stephenson’s Locomotion no. 1 of 1825 will be displayed 100 metres from the house. The museum’s permanent exhibits include Hackworth’s Sans Pareil engine built here in 1829 and Queen Alexandra’s furnished royal carriages. The Flying Scotsman runs here, under steam as a regular visitor. In the last major railway anniversary, immediate area property prices tripled. Local Airbnb’s currently book 22 out of 28-31 nights per month.
A testimony on living in Shildon : https://www.chroniclelive.co.uk/news/north-east-news/what-lifes-like-shildon-britains-18647330

EPC
The EPC is in date. Since then all carpet underfelt has been upgraded to high density, the attic floor was insulated with fibre glass, attic walls and under roof insulated with fireproof panels and all bulbs low energy. That reduced bills, but prices went up, so the red band bill estimate remains valid.
Full document please click :
Immediate Surrounding Area













Location
Access
Shildon railway station: 400 metres by footpath (for Darlington, Middleton St George, Middlesbrough, Redcar)
Likely car travel times: (minutes to arrival, as per Google maps, 14.8.21)
A1(M): South 10 minutes, North 15 minutes
Darlington railway station: London-Edinburgh mainline 20 minutes, for Durham, York.
International Airports: Teesside 26 minutes; Newcastle 57 minutes
Car Ferry terminal: DFDS, Overnight, restaurants/cabin service, North Shields to Ijmuiden for Amsterdam 48 minutes
Durham City centre 30 minutes, Newcastle upon Tyne 45 minutes, York 1 hour 12 minutes
Travel times to Attractions:
(researched for this advert and recently experienced, likely car minutes, from house, parking time excluded, as per Google maps, 14.8.21)
Most attractions are generally quiet and easy to reach.
Beaches: Seaton Carew 34 minutes; Redcar, Yorkshire 45 minutes; Whitby, Yorkshire 80 minutes
Medieval Castles: Auckland 9 minutes; Walworth (hotel and restaurant) 13 minutes; Whitton (café, restaurant, holiday park) 16 minutes; Raby (café, botanical gardens) 17 minutes; Brancepeth (café) 19 minutes; Barnard Castle (English Heritage – EH) 25 minutes; Richmond (EH) 28 minutes; Durham 31 minutes; Bowes (EH) free entry 34 minutes; and many others
Theatres: Darlington Hippodrome 19 minutes; Middlesbrough Little Theatre 35 minutes;Sunderland Empire (for Birmingham Royal Ballet) 43 minutes; Newcastle Theatre Royal (for Opera North) 45 minutes
Concert venues: Kynren 11 minutes; Darlington Arena 21 minutes; Middlesbrough Town Hall 33 minutes; The Sage (Northern Sinfonia Orchestra) 44 minutes
Museums and Galleries: The Auckland Project, Bishop Auckland 9 minutes; Bowes Museum, Barnard Castle; Dorman Museum, Middlesbrough; Head of Steam Railway Museum, Darlington; Beamish Open-Air Museum, Stanley 35 minutes; National Museum of the Royal Navy for the Napoleonic teak warship HMS Trincomalee, Hartlepool 39 minutes; Royal Armouries Museum, Leeds 72 minutes; and many others
Sports: Newcastle (10th in Premier League, 15.8.21); Middlesbrough FC; Sunderland FC. Shildon-Sunnydale Leisure Centre 4 minutes; Woodhouse Close swimming and sports centre 7 minutes; Yorkshire and Weardale moorlands 40 minutes; Hamsterley Forest mountain biking, horse riding 43 minutes; Tees Barrage International White-Water Centre 28 minutes; power boating, jet skiing Hartlepool; airfields at Fishburn 20 minutes; Shotton UK’s highest 15,000 feet skydive 33 minutes; Seagold Centurion equestrian centre, Hunwick 14 minutes; clay shooting 9 minutes; indoor climbing many venues close-by
Roman remains: Piercebridge, Lower Teesdale Riverside walks, roman fort, roman bridge (EH) free entry 14 minutes; Binchester, Lower Weardale Roman fort 13 minutes; Hadrian’s Wall Nearest remains (EH), free entry 43 minutes
Escomb: Saxon church, one of the three oldest in the UK, possibly even Roman, River Wear riverside walks 11 minutes
Stanwick: Huge earthworks over 2 miles across of the great Queen Cartimandua’s Romano-British capital (EH) free entry, including palace site, ramparts and barbicans, two churches (Stanwick and Forcett) with Viking sculptures 24 minutes
Seal Sands, Tees Estuary: Grey and Harbour Seal colony, bird watching, free viewing 36 minutes
Country mansions: Ormesby Hall Palladian, National Trust (NT) 41 minutes; Kiplin Hall Jacobean 31 minutes
Medieval Abbeys: Easby (EH), free entry 30 minutes; Egglestone (EH), free entry 28 minutes; Guisborough Priory (EH), free entry 44 minutes; Jervaulx Abbey 45 minutes; Finchale Priory & Durham Cathedral and many others
Lake District: Pooley Bridge for Ullswater ferry 81 minutes; Keswick, Derwentwater 95 minutes. Via A66. The Lake District is surprisingly close, as Shildon is west of Teesside, allowing day trips.
For more information please contact :
email : kpmartin@ymail.com
Tel. 07445 164 746, 01388 778 167

